8 (4822) 47-69-37
10-122
![]()
|
Начальная стоимость: 2 928 600 руб.Общая площадь: 325.4 м2Комплектация строительства деревянного домаФУНДАМЕНТ
СТЕНЫ И ПЕРЕГОРОДКИ
ПЕРЕКРЫТИЯ И ЛЕСТНИЦЫ
Возможно исполнение напольного покрытия пола из: ОСП, ЦСП (цементно-стружечные плиты), паркетной доски, ламината, напольной плитки или другого материала.
ОКНА, ДВЕРИ
СТРОПИЛЬНАЯ СИСТЕМА И КРОВЕЛЬНОЕ ПОКРЫТИЕ
|
|||
|
Примерный расчет стоимости строительства дома Комплектация строительства деревянного домаФУНДАМЕНТ
СТЕНЫ И ПЕРЕГОРОДКИ
ПЕРЕКРЫТИЯ И ЛЕСТНИЦЫ
Возможно исполнение напольного покрытия пола из: ОСП, ЦСП (цементно-стружечные плиты), паркетной доски, ламината, напольной плитки или другого материала.
ОКНА, ДВЕРИ
СТРОПИЛЬНАЯ СИСТЕМА И КРОВЕЛЬНОЕ ПОКРЫТИЕ
Бесплатно
Итого: 2 928 600 руб.
Сохранить расчет
Сохраните расчет строительства к себе на |
|
Описание
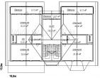
Небольшой брусовый дом является классическим вариантом загородного домостроения. Аккуратное миниатюрное крыльцо предваряет вход в постройку. Войдя в помещение, Вы сразу попадёте в тамбур: здесь можно оставить верхнюю одежду и обувь. Проект деревянного дома предусматривает техническое помещение, в котором можно хранить различную хозяйственную утварь. В отдалении от комнат находится санузел. Маленький холл находится перед гостиной, которая плавно переходит в кухню. Такая планировка очень удобна, если Вы планируете принимать гостей. По проекту предусмотрены 2 спальни одинаковых размеров.




Комплектация