8 (4822) 47-69-37
Бальтазар АР-47
![]()
|
Начальная стоимость: 7417746 руб.Общая площадь: 456 м2Линейные размеры: 252мКомплектация строительства дома по каркасной технологииФУНДАМЕНТ
СТЕНЫ, ПЕРЕГОРОДКИ
ПЕРЕКРЫТИЯ И ЛЕСТНИЦЫ
Возможно выполнить изготовление напольного покрытия пола из: ОСП, ЦСП (цементно-стружечные плиты), паркетной доски, ламината, напольной плитки или другого материала.
ОКНА, ДВЕРИ
СТРОПИЛЬНАЯ СИСТЕМА И КРОВЕЛЬНОЕ ПОКРЫТИЕ
|
||||||||||
|
Примерный расчет стоимости строительства дома Комплектация строительства дома по каркасной технологииФУНДАМЕНТ
СТЕНЫ, ПЕРЕГОРОДКИ
ПЕРЕКРЫТИЯ И ЛЕСТНИЦЫ
Возможно выполнить изготовление напольного покрытия пола из: ОСП, ЦСП (цементно-стружечные плиты), паркетной доски, ламината, напольной плитки или другого материала.
ОКНА, ДВЕРИ
СТРОПИЛЬНАЯ СИСТЕМА И КРОВЕЛЬНОЕ ПОКРЫТИЕ
Бесплатно
Итого: 9 028 800 руб.
Сохранить расчет
Сохраните расчет строительства к себе на |
|
Описание
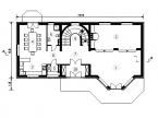
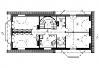
Небольшой брусовый дом является классическим вариантом загородного домостроения. Аккуратное миниатюрное крыльцо предваряет вход в постройку. Войдя в помещение, Вы сразу попадёте в тамбур: здесь можно оставить верхнюю одежду и обувь. Проект деревянного дома предусматривает техническое помещение, в котором можно хранить различную хозяйственную утварь. В отдалении от комнат находится санузел. Маленький холл находится перед гостиной, которая плавно переходит в кухню. Такая планировка очень удобна, если Вы планируете принимать гостей. По проекту предусмотрены 2 спальни одинаковых размеров.











Комплектация